uprava akustiky zkušebny
-
black_j0hn
- Příspěvky: 126
- Registrován: 25 kvě 2004 19:12
uprava akustiky zkušebny
ahoj. stehujeme se s kapelou do uplne nove zkusebny. vsechno je supr, ale asi budou trochu problemy s akustikou. zatim to tam je uplne prazdne a az se tam nastehujeme s vecma, bude to uplne jine. ale kdyz tam ted tlesknu, je slyset na vyzsich stredech a vyskach odrazy. chceme tam nahravat demo, takze je potreba to nejak komplexne vyresit. chtel jsem udelat nejake basove pasti, ale to asi neresi vysky, takze bude mozna potreba jeste neco jineho...
takze bych vas chtel poprosit abyste mi poradili co vyrobit, jake to ma mit rozmery a kam to umistit.
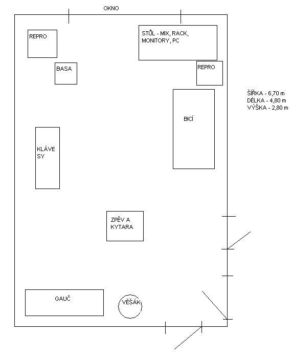
prikladam planek jak to tam vypada. rozmisteni veci je jenom takove jak by se mi zdalo nejlogictejsi, ale muze se to jeste posouvat v zajmu zvuku. bedny jsou RCF ART325A (2x 400W). ja hraju pres basove kombo 60W, ale chci kupovat silnejsi. zpevy a klavesy jdou pres ty RCF. steny jsou normalne zdene a omitnute. podlaha je plovouci.
pro predstavu stranky nasi kapely - www.charliestraight.com
predem diky za pomoc
takze bych vas chtel poprosit abyste mi poradili co vyrobit, jake to ma mit rozmery a kam to umistit.
prikladam planek jak to tam vypada. rozmisteni veci je jenom takove jak by se mi zdalo nejlogictejsi, ale muze se to jeste posouvat v zajmu zvuku. bedny jsou RCF ART325A (2x 400W). ja hraju pres basove kombo 60W, ale chci kupovat silnejsi. zpevy a klavesy jdou pres ty RCF. steny jsou normalne zdene a omitnute. podlaha je plovouci.
pro predstavu stranky nasi kapely - www.charliestraight.com
predem diky za pomoc
- Přílohy
-
- planek nasi zkusebny
Naposledy upravil(a) black_j0hn dne 24 bře 2007 14:37, celkem upraveno 1 x.
-
black_j0hn
- Příspěvky: 126
- Registrován: 25 kvě 2004 19:12
-
black_j0hn
- Příspěvky: 126
- Registrován: 25 kvě 2004 19:12
tak jsem procital nejake fora a asi by to chtelo jehlany na ty stredovysky. akorat si nejsem jisty jake by mely mit rozmery a kam je umistit...nemuzu tim pokryt cele steny, to by vyslo dost draho.
a ty basove pasti kam? do rohu? na stenu? nebo jsou nejake vzorce na vypocet toho jake by to melo mit rozmery?
diky
a ty basove pasti kam? do rohu? na stenu? nebo jsou nejake vzorce na vypocet toho jake by to melo mit rozmery?
diky
-
black_j0hn
- Příspěvky: 126
- Registrován: 25 kvě 2004 19:12
vim ze se tu o tom uz mnohokrat mluvilo, ale kazdy konkretni pripad je jiny, takze nechci udelat nejake zbrkle rozhodnuti.
ten napad se zavesama bohuzel nepujde, protoze na okne uz jsou drevene horizontalni zaluzie (funguji urcite i jako difuzer na stredovysky) a navic gauc potrebuju mit u dveri.
jak tak procitam tohle forum napadlo me tohle reseni: nad gauc dat tak 4 basove pasti, pak do rohů u okna taky po jedne. dale koupit jehlany a pokryt jimi tak pulku steny u klaves (snad to bude stacit). nemuzu jehlany lepit na stenu, ale napadlo me ze by se mohly nalepit na desku, ktera by se dala do ramu a povesila na zed jako obraz - podobny princip jako u nekterych basovych pasti. mozna jeste tak tri pasti na stenu u bicich...
bude to fungovat?
ten napad se zavesama bohuzel nepujde, protoze na okne uz jsou drevene horizontalni zaluzie (funguji urcite i jako difuzer na stredovysky) a navic gauc potrebuju mit u dveri.
jak tak procitam tohle forum napadlo me tohle reseni: nad gauc dat tak 4 basove pasti, pak do rohů u okna taky po jedne. dale koupit jehlany a pokryt jimi tak pulku steny u klaves (snad to bude stacit). nemuzu jehlany lepit na stenu, ale napadlo me ze by se mohly nalepit na desku, ktera by se dala do ramu a povesila na zed jako obraz - podobny princip jako u nekterych basovych pasti. mozna jeste tak tri pasti na stenu u bicich...
bude to fungovat?
-
black_j0hn
- Příspěvky: 126
- Registrován: 25 kvě 2004 19:12
-
black_j0hn
- Příspěvky: 126
- Registrován: 25 kvě 2004 19:12
jo jasne, ale nemuzu tam bohuzel kolem toho vrtat...
strop je z takovych tech kancelarskych panelu. proste kancelar.
- no ja jsem to tak myslel ze je po te stene rozmistim, ale ze celkova jejich plocha bude asi polovicni k te stene.
- ty monitory na stole budou jen orientacni, michat se to tam nebude. jde ted hlavne to abych odstranil ten strasny flutter + nejak upravit basy - hlavne kvuli nahravani a zkouseni. o michani az tak nejde.
strop je z takovych tech kancelarskych panelu. proste kancelar.
- no ja jsem to tak myslel ze je po te stene rozmistim, ale ze celkova jejich plocha bude asi polovicni k te stene.
- ty monitory na stole budou jen orientacni, michat se to tam nebude. jde ted hlavne to abych odstranil ten strasny flutter + nejak upravit basy - hlavne kvuli nahravani a zkouseni. o michani az tak nejde.
-
black_j0hn
- Příspěvky: 126
- Registrován: 25 kvě 2004 19:12
black john: "tak jsem procital nejake fora a asi by to chtelo jehlany na ty stredovysky. akorat si nejsem jisty jake by mely mit rozmery a kam je umistit...nemuzu tim pokryt cele steny, to by vyslo dost draho."
Obejdi hotely a kulturáky v okolí a zeptej se, jestli se jim neválí ve sklepě takové ty těžké "plyšové" závěsy. Pokud je seženeš, tak je dej nařasené na šňůrách kousek před zdi (zavěs na lustrháky v rozích). Kdyby se daly roztahovat, tak tím lépe, protože můžeš regulovat živost/mrtvost prostoru. Efekt bude podobný (ale ne stejný) jako s pyramidkami. Stát to bude čtyři lustrháky, pár metrů šňůry a flašku správci...
Saša
Obejdi hotely a kulturáky v okolí a zeptej se, jestli se jim neválí ve sklepě takové ty těžké "plyšové" závěsy. Pokud je seženeš, tak je dej nařasené na šňůrách kousek před zdi (zavěs na lustrháky v rozích). Kdyby se daly roztahovat, tak tím lépe, protože můžeš regulovat živost/mrtvost prostoru. Efekt bude podobný (ale ne stejný) jako s pyramidkami. Stát to bude čtyři lustrháky, pár metrů šňůry a flašku správci...
Saša
-
black_j0hn
- Příspěvky: 126
- Registrován: 25 kvě 2004 19:12





